Location de bureau de 222 m² à Grenoble - 38000 Réf : 38_000531

Photos
222 m² divisibles à partir de 123m²
/ m²/an
/ mois
/ an
185 €
Email
Téléphone
Prolocaux
Prolocaux
Mentions sur la protection de données personnelles
loader Location de bureau de 222 m² à Grenoble - 38000
Contacter David DARMON par téléphone pour la REF 38_000531 au : 0970140245

Description du bien


A louer bureaux d'environ 221,52 m2 au R+2 dans un immeuble de bureaux d'environ 3 000 m2. Quartier Presqu'île de Grenoble. Ce bien à la location vous est présenté par PROLOCAUX.


Les informations sur les risques auxquels ce bien est exposé sont disponibles sur le site Géorisques : www.georisques.gouv.fr

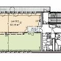
Bureaux d'environ 221,52 m2 au R+2:
- Lot B02 : 98,79 m2
- Lot C02 : 122,73 m2
Surface privative : 174,34 m2

Immeuble de bureaux d'environ 3 000 m2 en R+5
L'immeuble intègre les plus hautes normes environnementales pour offrir une efficience énergétique à ses occupants. Label BREEAM «qualification very good». Niveau 0 et 2 en accès direct.

PRESTATIONS TECHNIQUES
- conformité avec les objectifs de la RT 2012 – 30%
- certification BREEAM, niveau « Very Good »
- PLANCHERS D'ETAGE COURANT : dalles pleines béton armé intégrant un système de dalle active participant au traitement des plateaux de bureaux en chauffage et rafraîchissement
Charges d'exploitation : 250 kg/m²
Charges permanentes : 100 kg/m²
TERRASSES ACCESSIBLES : Dalles béton posées sur plots, sur un complexe d'étanchéité bitumineux multi-couches.
FACADES : isolation extérieure
PLOMBERIE : Distribution d'eau froide et évacuation dans chaque lot. Ces attentes sont prévues pour permettre aux utilisateurs d'installer une tisanerie ou une kitchenette. L'installation d'un compteur sera à prévoir dans le cadre des travaux d'aménagement, à charge du Preneur
TRAITEMENT CVC : Production de chaleur collective par pompe à chaleur géothermique sur eau de nappe.
Le bâtiment de bureaux sera chauffé ou rafraîchi à partir d'un système de dalle active et, selon les locaux, de ventilo convecteurs.
Le système sera réversible et permettra le rafraîchissement des locaux en été.
VENTILATION : Pour l'ensemble des locaux, une centrale de traitement d'air (CTA) à double flux à échangeur de chaleur, efficacité 80% au minimum, certifiée EUROVENT
SANITAIRES : Sol : Carrelage grès cérame 60x60 cm, Murs : Carrelage grès cérame en ados des points d'eau, Plafond : dalles minérales démontables 60 x 60, Appareillages sanitaires comprenant (selon les niveaux) : Vasque sur place, Miroir, WC suspendus, Douche

PRESTATIONS GÉNÉRALES AMENAGEMENTS
Les aménagements des bureaux et notamment le principe de cloisonnement intérieur des lots sont à charge du Preneur
REVÊTEMENT DE SOL : Moquette en dalles
REVETEMENTS MURAUX : Brut de béton - Poteaux peints ou bruts de béton
PLAFONDS : Brut de béton - Dalles acoustiques à prévoir dans le cadre des travaux d'aménagement, à charge du Preneur (30% de la surface)
COURANTS FORTS :Distribution primaire TGBT et Armoires divisionnaires d'étage avec création d'un réseau normal. Sous-comptage des consommations électriques par lot. Tableau électrique individuel et câblage lot privatif à la charge du Preneur
CHEMINEMENT : Ceinturage en goulotte, couleur noire, de la périphérie du plateau et fourreautage encastré dans le béton pour faire la liaison entre les chemins de câbles en plafond et la goulotte. Ce ceinturage est une mesure conservatoire pour permettre le déploiement, à charge du Preneur, de l'alimentation de ses postes de travail
ECLAIRAGE : en option, à la charge de l'Acquéreur : Suspension LED commandées par détection de présence et de luminosité
RESEAU TELECOM
Le fourreautage depuis la gaine technique ORANGE est prévu
CONTROLE D'ACCES : Portier vidéophone à l'entrée principale (Hall du R+2) en liaison avec les postes intérieurs
Contrôle d'accès pour les utilisateurs : - Portes des halls, Accès parking, Locaux vélos
ALARMES / SECURITE INCENDIE : Alarme anti-intrusion : dans les parties communes, Alarme incendie : Équipement prévu conforme à la réglementation

Accès autoroutiers à proximité


Ligne de bus 22, 54 C6 et tram B à moins de 10 min à pied (700 mètres)
Gare SNCF à 12 min à pied (950 mètres)

Disponibilité : 4ème trimestre 2023

Loyer annuel : 40981.2 € HT
Type de bail : Commercial
Dépôt de garantie : 3 mois

Honoraires à la charge du preneur : 15 % HT


Bâtiment économe 0
kWhEP/m²/an
Bâtiment énergivore
Faible émission de GES 0
kgeqCO2/m²/an
Forte émission de GES
Afficher les consommations énergétiques

Transports en commun autour du bien

Signaler cette annonce
Prolocaux est un cabinet de conseil en immobilier d'entreprise. Le secteur géographique de l'équipe s'étend sur la Normandie (Eure et Seine Maritime), la Picardie (Somme et Oise) et l’Isère. Prolocaux intervient auprès des propriétaires et des utilisateurs depuis la compréhension de leurs besoins ...En savoir plus sur Prolocaux à Rouen

Vous pourriez être également intéressé par ces annonces : Location de bureau de 222 m² à Grenoble - 38000

  • Location Bureau Grenoble (38000)

    Location bureau Grenoble, proche tram et transports, vue montagnes

    450€/mois 28 m²

    • Accès PMR
    • Parking
    • Climatisé
  • Location Bureau Grenoble (38000)

    Location bureau Grenoble (38000) - 153 m²

    2 254€/mois 153 m²

    • Accès PMR
    • Climatisé
  • Location Bureau Grenoble (38000)

    Location bureau Grenoble (38000) - 135 m²

    1 989€/mois 135 m²

    • Immeuble indépendant
    • Accès PMR
    • RDC
    • Climatisé
  • Location Bureau Grenoble (38000)

    Location bureaux Grenoble Technisud - Proche autoroute A480

    2 948€/mois 327 m²

    • RDC
    • Parking
    • Climatisé
Call us Par téléphone Appelez l'annonceur
Call us Par mail Remplissez le formulaire