Location d'entrepôt de 4 554 m² à Corbeil-Essonnes - 91100 Réf : 178441-0L

Photos
Visiter le Quartier
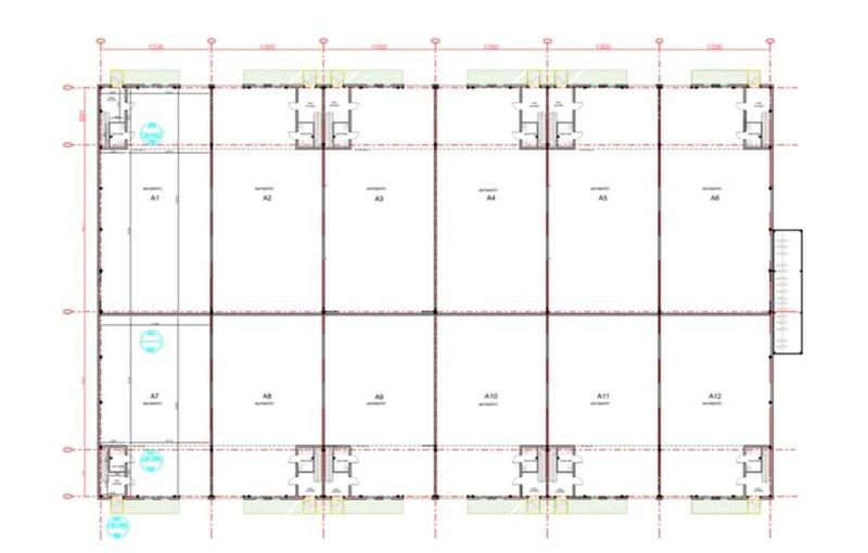
Plans
Carte
4 554 m² divisibles à partir de 374m²
/ m²/an
/ mois
/ an
100 €
Email
Téléphone
Cushman & Wakefield IDF Sud 2ème Couronne
Cushman & Wakefield IDF Sud 2ème Couronne
Mentions sur la protection de données personnelles
loader Location d'entrepôt de 4 554 m² à Corbeil-Essonnes - 91100
Contacter Nicolas Guerreiro par téléphone pour la REF 178441-0L au : 0169298621

Description du bien

À Louer : Locaux d'Activités 5 490 m²
Immeuble HIGHLANDS PARK
À louer : locaux d'activités de 5 490 m² situés à Corbeil-Essonnes.

Deux bâtiments à usage d'activité avec bureaux d'accompagnement composé de 16 cellules de 375 à 470 m² pouvant être regroupées.
HSP : de 7 à 7,5 m.

Ces espaces modulables sont divisibles à partir de 374 m², offrant une flexibilité parfaite pour s'adapter à vos besoins spécifiques. Idéalement situé dans une zone stratégique avec un excellent accès aux principaux axes routiers, ce bien est parfait pour divers usages professionnels.

Pour plus d'informations ou pour organiser une visite, contactez-nous dès aujourd'hui.

Accessibilité:

RER D "Evry-Courcouronnes"
Bus Lignes 405 et 402
Accès routier A6 ; A104
 
ÉtageTypeSurfacesDispoLoyerChargesType de bail
Rév. annuelle
RdCActivités338100 /m²/an HT HC17 /m²/an HT
Indexation sur l'indice ILAT
RdCBureaux14100 /m²/an HT HC17 /m²/an HT
Indexation sur l'indice ILAT
1Bureaux95100 /m²/an HT HC17 /m²/an HT
Indexation sur l'indice ILAT
Total Cellule A1Activités447100 HT/HC/m²/an17 HT/m²/an3-6-9 ans
Indexation sur l'indice ILAT
RdCActivités338100 /m²/an HT HC17 /m²/an HT
Indexation sur l'indice ILAT
RdCBureaux14100 /m²/an HT HC17 /m²/an HT
Indexation sur l'indice ILAT
1Bureaux95100 /m²/an HT HC17 /m²/an HT
Indexation sur l'indice ILAT
Total Cellule A2Activités447100 HT/HC/m²/an17 HT/m²/an3-6-9 ans
Indexation sur l'indice ILAT
RdCActivités338100 /m²/an HT HC17 /m²/an HT
Indexation sur l'indice ILAT
RdCBureaux14100 /m²/an HT HC17 /m²/an HT
Indexation sur l'indice ILAT
1Bureaux95100 /m²/an HT HC17 /m²/an HT
Indexation sur l'indice ILAT
Total Cellule A3Activités447100 HT/HC/m²/an17 HT/m²/an3-6-9 ans
Indexation sur l'indice ILAT
RdCActivités338100 /m²/an HT HC17 /m²/an HT
Indexation sur l'indice ILAT
RdCBureaux14100 /m²/an HT HC17 /m²/an HT
Indexation sur l'indice ILAT
1Bureaux95100 /m²/an HT HC17 /m²/an HT
Indexation sur l'indice ILAT
Total Cellule A4Activités447100 HT/HC/m²/an17 HT/m²/an3-6-9 ans
Indexation sur l'indice ILAT
RdCActivités338100 /m²/an HT HC17 /m²/an HT
Indexation sur l'indice ILAT
RdCBureaux14100 /m²/an HT HC17 /m²/an HT
Indexation sur l'indice ILAT
1Bureaux95100 /m²/an HT HC17 /m²/an HT
Indexation sur l'indice ILAT
Total Cellule A5Activités447100 HT/HC/m²/an17 HT/m²/an3-6-9 ans
Indexation sur l'indice ILAT
RdCActivités338100 /m²/an HT HC17 /m²/an HT
Indexation sur l'indice ILAT
RdCBureaux14100 /m²/an HT HC17 /m²/an HT
Indexation sur l'indice ILAT
1Bureaux95100 /m²/an HT HC17 /m²/an HT
Indexation sur l'indice ILAT
Total Cellule A6Activités447100 HT/HC/m²/an17 HT/m²/an3-6-9 ans
Indexation sur l'indice ILAT
RdCActivités283100 /m²/an HT HC17 /m²/an HT
Indexation sur l'indice ILAT
RdCBureaux14100 /m²/an HT HC17 /m²/an HT
Indexation sur l'indice ILAT
1Bureaux77100 /m²/an HT HC17 /m²/an HT
Indexation sur l'indice ILAT
Total Cellule A8Activités374100 HT/HC/m²/an17 HT/m²/an3-6-9 ans
Indexation sur l'indice ILAT
RdCActivités283100 /m²/an HT HC17 /m²/an HT
Indexation sur l'indice ILAT
RdCBureaux14100 /m²/an HT HC17 /m²/an HT
Indexation sur l'indice ILAT
1Bureaux77100 /m²/an HT HC17 /m²/an HT
Indexation sur l'indice ILAT
Total Cellule A10Activités374100 HT/HC/m²/an17 HT/m²/an3-6-9 ans
Indexation sur l'indice ILAT
RdCActivités283100 /m²/an HT HC17 /m²/an HT
Indexation sur l'indice ILAT
RdCBureaux14100 /m²/an HT HC17 /m²/an HT
Indexation sur l'indice ILAT
1Bureaux77100 /m²/an HT HC17 /m²/an HT
Indexation sur l'indice ILAT
Total Cellule A11Activités374100 HT/HC/m²/an17 HT/m²/an3-6-9 ans
Indexation sur l'indice ILAT
RdCActivités283100 /m²/an HT HC17 /m²/an HT
Indexation sur l'indice ILAT
RdCBureaux14100 /m²/an HT HC17 /m²/an HT
Indexation sur l'indice ILAT
1Bureaux77100 /m²/an HT HC17 /m²/an HT
Indexation sur l'indice ILAT
Total Cellule A9Activités374100 HT/HC/m²/an17 HT/m²/an3-6-9 ans
Indexation sur l'indice ILAT
RdCActivités288100 /m²/an HT HC17 /m²/an HT
Indexation sur l'indice ILAT
RdCBureaux13100 /m²/an HT HC17 /m²/an HT
Indexation sur l'indice ILAT
1Bureaux75100 /m²/an HT HC17 /m²/an HT
Indexation sur l'indice ILAT
Total Cellule B4Activités376100 HT/HC/m²/an17 HT/m²/an3-6-9 ans
Indexation sur l'indice ILAT


Impôt Foncier : 5,96 €//m²/an
Régime Fiscal : T.V.A.
Honoraires : 15 % HT du loyer annuel HT/HC à la charge du preneur.
Taxe Bureau : 2,6 €/m²/an

Prestations :


  • Programme neuf de 2 bâtiments à usage d'activité, développant 16 cellules indépendantes de 375 m² à 470 m² et pouvant être regroupées.
  • Site entièrement clos et sécurisé
  • Activité : HSP 7m (Bât A) et 7,5m (Bât B) ; Tarif bleu ; Chauffage aérotherme gaz ; 1 porte de plain-pied par cellule de 3 x 3,5m ; Charge au sol : 3T/M²
  • Bureaux : Eclairage LED ; livré en open-space
  • Surface RDC : 4347 m²



Les informations sur les risques auxquels ce bien est exposé sont disponibles sur le site Géorisques : www.georisques.gouv.fr
Bâtiment économe 0
kWhEP/m²/an
Bâtiment énergivore
Faible émission de GES 0
kgeqCO2/m²/an
Forte émission de GES
Afficher les consommations énergétiques

Transports en commun autour du bien

Signaler cette annonce
Conseil en immobilier d'entreprise, Cushman & Wakefield est un acteur incontournable au rayonnement international. Cushman & Wakefield offre des solutions dans toutes les étapes que comporte un projet immobilier, aussi bien pour la gestion que la commercialisation aux propriétaires, investisseu ...En savoir plus sur Cushman & Wakefield IDF Sud 2ème Couronne à Villebon-sur-Yvette

Vous pourriez être également intéressé par ces annonces : Location d'entrepôt de 4 554 m² à Corbeil-Essonnes - 91100

  • Location Entrepôt Corbeil-Essonnes (91100)

    Location activité/entrepôt Corbeil-Essonnes (91100) - 3999 m²

    3 133€/mois 376 à 3 999 m²

    • Avec Bureaux
    • Bâtiment indépendant
    • Accès Plain-pied
    • Parking
    • Accessible poids-lourds
  • Location Entrepôt Corbeil-Essonnes (91100)

    Location activité/entrepôt Corbeil-Essonnes (91100) - 816 m²

    6 800€/mois 816 m²

    • Avec Bureaux
    • Quai de déchargement
    • Site Clos
    • Accès Plain-pied
    • Parking
  • Location Entrepôt Corbeil-Essonnes (91100)

    Location activité/entrepôt Corbeil-Essonnes (91100) - 874 m²

    6 191€/mois 874 m²

    • Avec Bureaux
    • Quai de déchargement
    • Porte Sectionnelle
    • Accès Plain-pied
    • Parking
  • Location Entrepôt Corbeil-Essonnes (91100) Vidéo

    Location cellules d'activité Corbeil-Essonnes - Proximité Francilienne N104

    3 083€/mois 370 à 5 565 m²

    • Avec Bureaux
    • Site Clos
    • Accès Plain-pied
    • Parking
    • Gardiennage
Call us Par téléphone Appelez l'annonceur
Call us Par mail Remplissez le formulaire