Location d'entrepôt de 2 016 m² à Crémieu - 38460 Réf : 177488-0

Photos
Visiter le Quartier
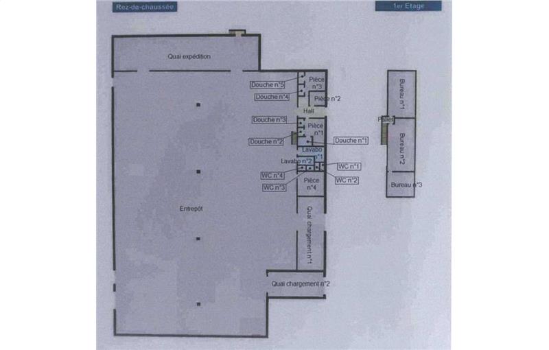
Plans
Carte
2 016 m²
Loyer sur demande
Email
Téléphone
Cushman & Wakefield Lyon
Cushman & Wakefield Lyon
Mentions sur la protection de données personnelles
loader Location d'entrepôt de 2 016 m² à Crémieu - 38460
Contacter Adrien Font par téléphone pour la REF 177488-0 au : 0437247423

Description du bien


Nous vous proposons à la vente un bâtiment industriel, sur la commune de Crémieu (38460).
Location possible.
Possibilité de stockage extérieur et aire de retournement poids lourds.
Ce local d'activité dispose d'accès de plain-pied et quais déchargement.

Accessibilité:

Accès routier Accès direct Départementale D75 & D517 Accès Autoroute A432 Raccordement A43
SNCF Gare TER la Verpillière à 20 min environ
Aéroport Aéroport et gare TGV Lyon Saint Exupéry à 22 min. environ (20 km)
 
ÉtageTypeSurfacesDispoLoyerChargesType de bail
Rév. annuelle
RdCActivités1802
Indexation sur l'indice ILAT
RdCLocaux sociaux102
Indexation sur l'indice ILAT
R+1Bureaux112
Indexation sur l'indice ILAT
Total CelluleActivités2016Immédiate3-6-9 ans
Indexation sur l'indice ILAT


Impôt Foncier : 10000 €//an
Régime Fiscal : T.V.A.
Dépôt de garantie : 3 mois de loyer HT/HC
Paiement Loyer : trimestriel
Honoraires : 15 % HT du loyer annuel HT/HC à la charge du preneur.

Information sur le Bail :

Nous consulter


Prestations :


  • Nombreux parkings extérieurs
  • Aire de retournement
  • 1 quai de déchargement
  • 2 accès PL de PP
  • 3 quais VL
  • Murs en bardage métallique double peau
  • Toiture bac acier isolée
  • Chauffage gaz
  • Sol dalle béton
  • 5,5 m de hauteur au plus bas
  • Eclairage néon
  • Douches et vestiaires
  • Tarif bleu
  • Surface RDC : 1904 m²



Les informations sur les risques auxquels ce bien est exposé sont disponibles sur le site Géorisques : www.georisques.gouv.fr
Bâtiment économe 0
kWhEP/m²/an
Bâtiment énergivore
Faible émission de GES 0
kgeqCO2/m²/an
Forte émission de GES
Afficher les consommations énergétiques

Transports en commun autour du bien

Signaler cette annonce
Conseil en immobilier d'entreprise, Cushman & Wakefield est un acteur incontournable au rayonnement international. Cushman & Wakefield offre des solutions dans toutes les étapes que comporte un projet immobilier, aussi bien pour la gestion que la commercialisation aux propriétaires, investisseu ...En savoir plus sur Cushman & Wakefield Lyon à Lyon 6

Vous pourriez être également intéressé par ces annonces : Location d'entrepôt de 2 016 m² à Crémieu - 38460

  • Location Entrepôt Crémieu (38460)

    Local d'activité à louer Crémieu - ZA de Crémieu

    2 094€/mois 237 m²

    • Porte Sectionnelle
    • Parking
  • Location Entrepôt Crémieu (38460)

    Local d'activité à louer Crémieu - Parc sécurisé

    2 058€/mois 380 m²

    • Avec Bureaux
    • Accès Plain-pied
    • Double peau
  • Location Entrepôt Crémieu (38460)

    Local d'activité à louer Crémieu - Village des entreprises

    1 010€/mois 146 à 3 592 m²

    • Accès Plain-pied
    • Parking
  • Location Entrepôt Crémieu (38460)

    Local d'activité à louer Crémieu - ZA de Crémieu

    2 074€/mois 237 à 3 298 m²

    • Porte Sectionnelle
    • Parking
Call us Par téléphone Appelez l'annonceur
Call us Par mail Remplissez le formulaire