Location de local commercial de 370 m² à Péronne - 80200 Réf : 617328-0L

Photos
Plans
370 m²
Loyer sur demande
Email
Téléphone
Arthur Loyd Amiens
Arthur Loyd Amiens
Mentions sur la protection de données personnelles
loader Location de local commercial de 370 m² à Péronne - 80200
Contacter Felix Dujardin par téléphone pour la REF 617328-0L au : 0359284661

Description du bien

Installez votre commerce dans ce retail park à Péronne - dernière cellule commerciale à louer !
DERNIÈRE OPPORTUNITÉ D'INSTALLATION !

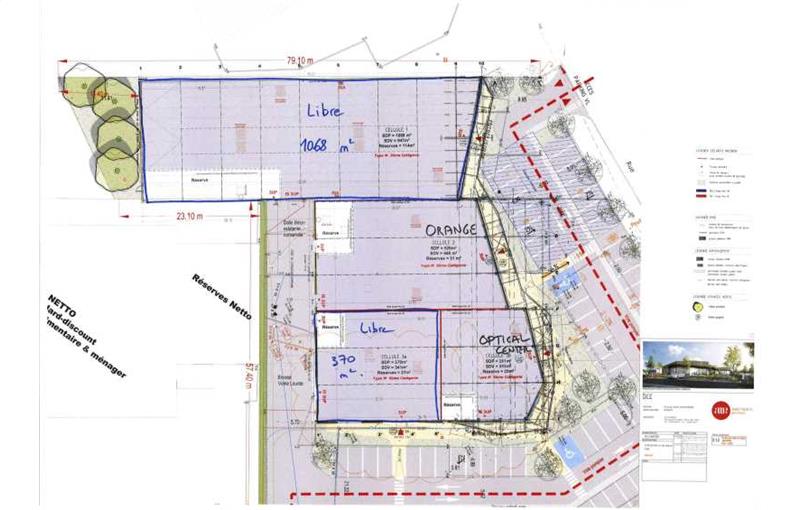
Sur un terrain de 5.570 m2 environ, une cellule commerciale neuve d'environ 370 m2 à louer.

La cellule est livrée brute de béton, fluides en attente.

Voisins immédiats : ORANGE, BASIC FIT & OPTICAL CENTER.

Accessibilité:

Route à 5 minutes
Autoroute à 10 minutes
Bus à 5 minutes
 
ÉtageTypeSurfacesDispoLoyerChargesType de bail
Rév. annuelle
Locaux Commerciaux370Immédiate


Dépôt de garantie : 3 mois de loyer HT/HC

Prestations :


  • Chaque cellule est composée de :
  • Un espace de stockage (avec porte sectionnelle)
  • Un espace de ventes
  • Ossature : Métallique
  • Locaux aux normes PMR et ERP.
  • Site sécurisé
  • Parking commun de 80 places dont : 2 PMR, 8 pour véhicules électriques
  • Surface RDC : 370 m²



Les informations sur les risques auxquels ce bien est exposé sont disponibles sur le site Géorisques : www.georisques.gouv.fr
Bâtiment économe 0
kWhEP/m²/an
Bâtiment énergivore
Faible émission de GES 0
kgeqCO2/m²/an
Forte émission de GES
Afficher les consommations énergétiques

Transports en commun autour du bien

Signaler cette annonce
Arthur Loyd Amiens est un cabinet de conseil en immobilier d'entreprise actif dans tout le département de la Somme, depuis le centre ville d'Amiens jusqu'à l'espace industriel Nord et au pôle Jules Verne.L'équipe d'Arthur Loyd Amiens accompagne ses clients dans leurs projets relatifs à l'immobili ...En savoir plus sur Arthur Loyd Amiens à Amiens
Call us Par téléphone Appelez l'annonceur
Call us Par mail Remplissez le formulaire