Location de local commercial de 110 m² à Villeurbanne - 69100 Réf : 1089884-0L

Photos
Visiter le Quartier
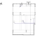
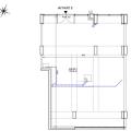
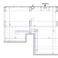
Plans
Carte
110 m²
/ m²/an
/ mois
/ an
230 €
Email
Téléphone
SLDI
SLDI
Mentions sur la protection de données personnelles
loader Location de local commercial de 110 m² à Villeurbanne - 69100
Contacter Cécile Frappat par téléphone pour la REF 1089884-0L au : 0482296537

Description du bien


Nous vous vous proposons à la location, un local commerciaux , au sein du quartier dynamique du Carré de Soie, proximité des transports en communs.
Ce bien est à destination de commerces, et, d'activité de service avec accueil clientèle. Pas de restauration possible.

Accessibilité:

Bus TCL ligne C3
Métro
Tram
Route périphérique Laurent Bonnevay
Aéroport St Exupéry
 
ÉtageTypeSurfacesDispoLoyerChargesType de bail
Rév. annuelle
RDCLocaux Commerciaux1101er trimestre 2023230 HT/HC/m²/an2024 /an HT3-6-9 ans
ILC Indice des Locaux Commerciaux


Régime Fiscal : T.V.A.
Honoraires : 30 % à la charge du preneur.

Information sur le Bail :

Possibilité de rajouter une mezzanine de 67,20m² à la charge du preneur (ne nécessitant pas d'autorisation préalable) + 1 Box au 2nd sous-sol en sus à 1 200 e (HT/HC/HF)


Prestations :


  • Locaux livrés brut de béton
  • 6 Parking en sous sol à 1200 euros HT/U/An
  • Activités autorisées : Nous vous proposons les lots à destination de commerces et activités de service où s'effectuent l'accueil d'une clientèle. Les lots peuvent être réunis. Dossier solide exigé. Garantie à première demandée selon le dossier.
  • Activités interdites : Dédié au médical, paramédical et activités de services. Interdit nuisances et à la restauration.
  • Surface RDC : 110 m²



Les informations sur les risques auxquels ce bien est exposé sont disponibles sur le site Géorisques : www.georisques.gouv.fr
Bâtiment économe 0
kWhEP/m²/an
Bâtiment énergivore
Faible émission de GES 0
kgeqCO2/m²/an
Forte émission de GES
Afficher les consommations énergétiques

Transports en commun autour du bien

Signaler cette annonce
Etablie à Lyon depuis 1999, la Société Lyonnaise de Développement Immobilier,(SLDI) est l'un des principaux acteurs indépendants du Conseil en immobilier d’entreprise. Que vous soyez industriel, commerçant, artisan, acteur du secteur privé ou public, nous serons à votre écoute pour comprendre vos ...En savoir plus sur SLDI à Tassin-la-Demi-Lune

Vous pourriez être également intéressé par ces annonces : Location de local commercial de 110 m² à Villeurbanne - 69100

  • Location Local commercial Villeurbanne (69100)

    Location local commercial Villeurbanne (69100) - 50 m²

    1 040€/mois 50 m²

    • Neuf
    • Climatisé
    • Rideau Métallique
  • Location Local commercial Villeurbanne (69100)

    Location local commercial Villeurbanne (69100) - 120 m²

    2 125€/mois 120 m²

    • Extraction
    • Neuf
    • Restauration
    • ERP
    • Accès PMR
    • Climatisé
  • Location Local commercial Villeurbanne (69100)

    Local commercial à louer Villeurbanne - Avenue Roger Salengro

    1 316€/mois 179 m²

    • Climatisé
  • Location Local commercial Villeurbanne (69100)

    Local commercial à louer Villeurbanne - Avenue Roger Salengro

    1 450€/mois 109 m²

Call us Par téléphone Appelez l'annonceur
Call us Par mail Remplissez le formulaire