Entrepôt à vendre de 1 890 m² à Chambray-lès-Tours - 37170 Réf : GL-V46485V

Photos
1 890 m² divisibles à partir de 218m²
total
/ m²
2 687 788 €
Email
Téléphone
Advenis Conseil et Transaction Tours
Advenis Conseil et Transaction Tours
Mentions sur la protection de données personnelles
loader Entrepôt à vendre de 1 890 m² à Chambray-lès-Tours - 37170
Contacter PIERRE MIGAULT par téléphone pour la REF GL-V46485V au : 0252568556

Description du bien

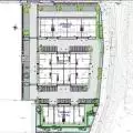
Cellules d'activités de 218 m² à 1 890 m², à vendre à Chambray les Tours

Advenis Conseil Tours vous propose ce programme à vendre composé de 3 bâtiments à construire, à usage d'activités. Chaque bâtiment propose de 4 à 8 cellules avec mezzanine, pour des surfaces 218 m² à 1 890 m². Disponible immédiatement, l'ensemble bénéficie d'une excellente situation, à 7 km du centre-ville de TOURS et au coeur de la zone d'activité la Vrillonnerie à CHAMBRAY LES TOURS, à deux minutes du périphérique Tourangeau et de l'autoroute A10, avec arrêt de bus fil bleu (ligne 3b) : à 5minutes à pied.

Prestations :

- Immeubles d'activités neufs
- Bâtiment A : environ 1 282 m² ( divisible en 4 cellules à partir de 266 m²)
- Bâtiment B : environ 1 890 m² ( divisible en 8 cellules à partir de 230 m²)
- Bâtiment C : environ 878 m² ( divisible en 4 cellules à partir de 218 m²)
- Structure acier
- Bardage métallique
- Dalle béton
- Porte sectionnelle
- Mezzanine
- 22 places de parking dont 16 pré-équipées IRVE
- 2 places de parking PMR dont 1 équipée IRVE et 1 pré-équipée


Tableau de Surfaces :
SurfacePrix / m²Charges / m² / an
266m²
322m²
235m²
230m²
230m²
265m²
235m²
230m²
230m²
235m²
218m²
221m²
221m²
218m²

Accessibilité :

Accès principal : RD 910
- A10 à 1 km
- A85 à 6 km
- A28 à 18 km
- Desserte bus Fil Bleu
- Aéroport à 15 km
- Gare TGV à 10 km
Bâtiment économe 0
kWhEP/m²/an
Bâtiment énergivore
Faible émission de GES 0
kgeqCO2/m²/an
Forte émission de GES
Afficher les consommations énergétiques

Transports en commun autour du bien

Signaler cette annonce
Advenis Conseil et Transaction Tours est un cabinet de conseil spécialiste de l'immobilier d'entreprise.Dirigé par Pierre Migault, Advenis Conseil et Transaction Tours est un acteur reconnu en Indre-et-Loire. Le cabinet vous accompagne tout au long de vos projets immobiliers à l'achat, la locatio ...En savoir plus sur Advenis Conseil et Transaction Tours à Saint-Avertin

Vous pourriez être également intéressé par ces annonces : Entrepôt à vendre de 1 890 m² à Chambray-lès-Tours - 37170

  • Vente Entrepôt Chambray-lès-Tours (37170)

    Activité/Entrepôt à vendre Chambray-lès-Tours (37170) - 544 m²

    830 003 544 m²

    • Avec Bureaux
    • Porte Sectionnelle
    • Parking
    • Accessible poids-lourds
    • Double peau
  • Vente Entrepôt Chambray-lès-Tours (37170)

    Local d'activité à vendre Chambray-lès-Tours - Proche Tours

    830 000 516 m²

    • Avec Bureaux
    • Porte Sectionnelle
  • Vente Entrepôt Chambray-lès-Tours (37170)

    Locaux d'activités neufs à vendre Chambray-lès-Tours - Zone Vrillonnerie Sud

    309 301 218 à 3 675 m²

    • Avec Bureaux
    • Bâtiment indépendant
    • Porte Sectionnelle
    • Accès Plain-pied
    • Double peau
Call us Par téléphone Appelez l'annonceur
Call us Par mail Remplissez le formulaire